¿Cómo diseñamos una cocina? Te lo contamos paso a paso
7 de abril de 2025En Cafran sabemos que realizar un nuevo proyecto de cocina desde cero es complejo y requiere mucha experiencia, por lo que entendemos que esto para ti pueda ser un proceso complicado. Por ello a continuación vamos a tratar de explicártelo de forma sencilla en cinco pasos, desde el primer contacto hasta que por fin, tienes tu nueva cocina instalada.
Paso 1: Concretamos una cita previa para que nos compartas tu idea.
Cada cocina es única al igual que las personas que atendemos, por ello en Cafran no realizamos presupuestos online, nuestro trato es presencial y cercano. Nos gusta invertir tiempo de calidad contigo para personalizar tu proyecto al máximo y esto sólo se logrará con una cita previa.
Por cierto, si no sabes cómo tomar las medidas de tu cocina no te preocupes, te lo explicamos aquí:
https://cafrancocinas.com/como-medir-tu-cocina-en-5-sencillos-pasos/
Paso 2: En nuestro establecimiento, estudiamos el proyecto y te asesoramos para conseguir tu cocina ideal.
En Cafran no sólo elegirás los acabados, sino que también encontrarás la última tecnología en electrodomésticos y tendencias con las que inspirarte. Además, nuestro equipo de profesionales gracias a una amplia experiencia y pasión por su trabajo, podrá brindarte ideas que jamás habrías imaginado.
Paso 3: Realizamos un diseño y presentamos tu futura cocina con imágenes 3D, para que no te pierdas ningún detalle.
En nuestra segunda visita te presentaremos el proyecto totalmente adaptado a tus necesidades, ofreciendo soluciones tanto técnicas como estéticas que te sorprenderán. Si no eres capaz de visualizarlo sobre plano no te preocupes, podrás ver imágenes realistas de tu futura cocina en tres dimensiones.
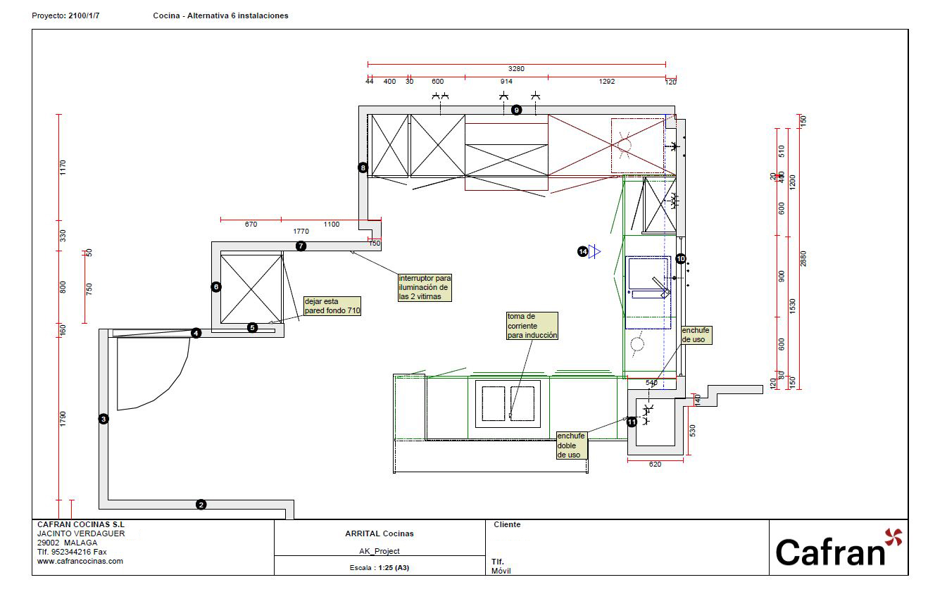
Paso 4: Tras tu aprobación, comprobamos las medidas y obtendrás los planos de instalación.
Cuando nos apruebes el proyecto revisaremos las medidas que nos facilitaste en la primera visita. También obtendrás los planos de instalación que serán imprescindibles para los profesionales de la reforma, así sabrán con exactitud cómo y dónde necesitamos todos los puntos de agua y de luz. Por supuesto, estaremos en contacto con ellos y nos encargaremos de supervisar cada paso de la reforma para que nuestro montaje sea impecable.
Paso 5: Nos ponemos manos a la obra para hacer tu cocina realidad.
Cuando la reforma esté finalizada será el momento para que nuestros operarios instalen tu nueva cocina. Este paso es esencial para nosotros, una planificación previa exhaustiva y un mueble de calidad requieren de unas manos expertas y en Cafran sólo contamos con grandes profesionales para que el resultado final sea el que nosotros deseamos: una clientela satisfecha día tras día desde hace más de cuarenta años.
¿Te ha quedado alguna duda? Si contactas con nosotros estaremos encantados de ayudarte.
¡Solicita ya tu cita previa!















